[コラム] 天空率_道路斜線の「2A」って?

天空率ならADS

[コラム] 天空率_道路斜線の「2A」って?

天空率の道路斜線の領域分け、特に令第132条の「2A」について

今回は、天空率の道路斜線の領域分け、特に令第132条の「2A」についてご説明します。
敷地が複数の道路に接している場合、道路斜線には緩和が適用されます。
狭い方の道路の特定範囲において、広い道路の幅員から斜線が発生するというものです。「2A かつ 35」のキーワードの方がピンとくるかもしれません。
この「2A かつ 35」を呪文のように唱え、その範囲を最大道路幅員×2の数値と35mを比べた小さい方の距離までと思っている方も多いと思いますが、もっと広い範囲になる場合があります。
法文を見てみましょう。


<令第132条第1項>

建築物の前面道路が2以上ある場合においては、幅員の最大な前面道路の境界線からの水平距離がその前面道路の幅員の2倍以内で、かつ、35m以内の区域及びその他の前面道路の中心線からの水平距離が10mを超える区域については、全ての前面道路が幅員の最大な前面道路と同じ幅員を有するものとみなす。

ポイントは、一番広い幅員以外の道路に関しては、当該道路中心から10mの範囲を超えると2A領域になる、ということです。


◆ 2面接道交差点の場合

T字路に面している敷地で、幅員:A > Bの道路を見てみましょう
天空率ならADS
以下は、一般的な「敷地単位区域分け優先」の領域分けです。
天空率算定領域は、A道路からの2A領域と
天空率ならADS
B道路からの2A領域 および 令第132条第3項領域 になります。
天空率ならADS
2A領域の範囲は以下になります。
天空率ならADS
領域分けの考え方は一つではなく、他に「境界線単位区域分け優先」の分け方もあります。


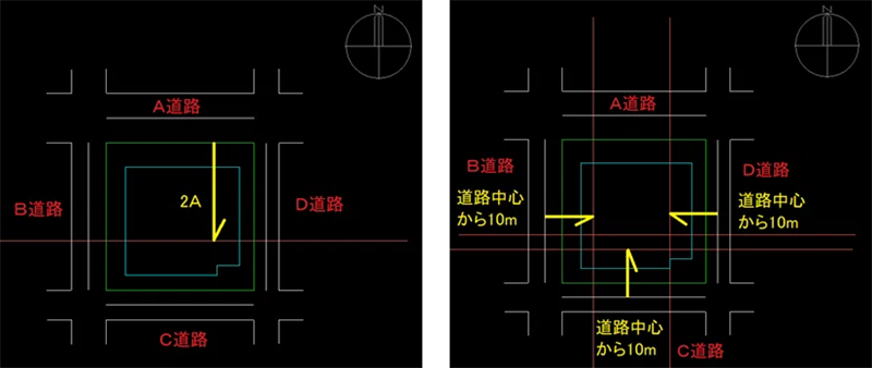
◆ 4面接道交差点の場合

4方向道路に囲まれている敷地で、幅員:A > B > C > D のケースを見てみましょう
天空率ならADS
最大幅員の道路境界線から道路幅員の2倍の距離までがまずは2Aの範囲です。
それ以外の道路の道路中心から10mの範囲を取ると、
天空率ならADS
道路中心10mを超える範囲も2Aとなります。
天空率ならADS

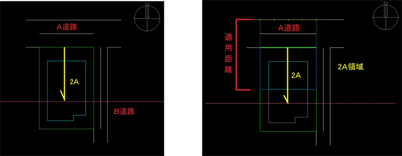
◆ 2面接道が対面している場合

2つの道路に挟まれている敷地で、幅員:A > B のケースを見てみましょう
天空率ならADS
広い道路の道路境界線から道路幅員の2倍の距離までがまずは2Aの範囲ですが、狭い方の道路中心から10mを超える範囲も2Aとなります。
天空率ならADS

◆ 2面接道で片側が行止り道路の場合

2つの道路に挟まれている敷地で、幅員:A > B 、Bがドン付き行止り道路のケースを見てみましょう
天空率ならADS
広い道路の道路境界線から道路幅員の2倍の距離までがまずは2Aの範囲ですが、狭い行止り道路の道路中心から10mを超える範囲も2Aとなります。
天空率ならADS
以上、シンプルな道路・交差点条件での2A領域範囲の例をご紹介しました。

詳しい領域分けに関しては、以下をご参考下さい。
 ・法令:令第132条
 ・確認申請memo:16-7




生活産業研究所 コラム

本サイトに掲載されているすべての内容の著作権は生活産業研究所株式会社に帰属しております。 本サイトの掲載内容(画像、文章等)の一部及び全てについて、無断で複製、転載、転用、改変等の二次利用を固く禁じます。 上記著作権の無断複製、転載、転用、改変等が判明した場合は、法的措置をとる場合がございます。